Skip to main content
NL
FR
EN
Actua
Agenda
News
Score With Steel Newsletter
InfoSteel Newsletter
Projecten
Recente projecten
Utiliteitsbouw
Residentieel
Elementen in staal
Infrastructuur
Internationaal
Industriebouw
Beeldbank
Events
STEELdays
Staalbouwdag
Staalbouwwedstrijd
Bezoeken
Opleidingen
Onderwijs
Materiaal & Technologie
Staalsoorten
Toepassingen
Techniek & normen
Leden
Leden
Wie doet wat ?
Lid worden
Vacatures bij onze leden
Technische brochures
Publicaties
Overzicht
Webshop
Downloads
Ons magazine
L'Ossature Métallique
Tools
Missie
Disclaimer
Contact
Score With Steel (SWS)
Bouwakkoord Staal
STEELdays
IPO Steel Network
podcast
NL
FR
EN
Menu
Actua
Agenda
News
Score With Steel Newsletter
InfoSteel Newsletter
Projecten
Recente projecten
Utiliteitsbouw
Residentieel
Elementen in staal
Infrastructuur
Internationaal
Industriebouw
Beeldbank
Events
STEELdays
Staalbouwdag
Staalbouwwedstrijd
Bezoeken
Opleidingen
Onderwijs
Materiaal & Technologie
Staalsoorten
Toepassingen
Techniek & normen
Leden
Leden
Wie doet wat ?
Lid worden
Vacatures bij onze leden
Technische brochures
Publicaties
Overzicht
Webshop
Downloads
Ons magazine
L'Ossature Métallique
Tools
Missie
Disclaimer
Contact
Score With Steel (SWS)
Bouwakkoord Staal
STEELdays
IPO Steel Network
podcast
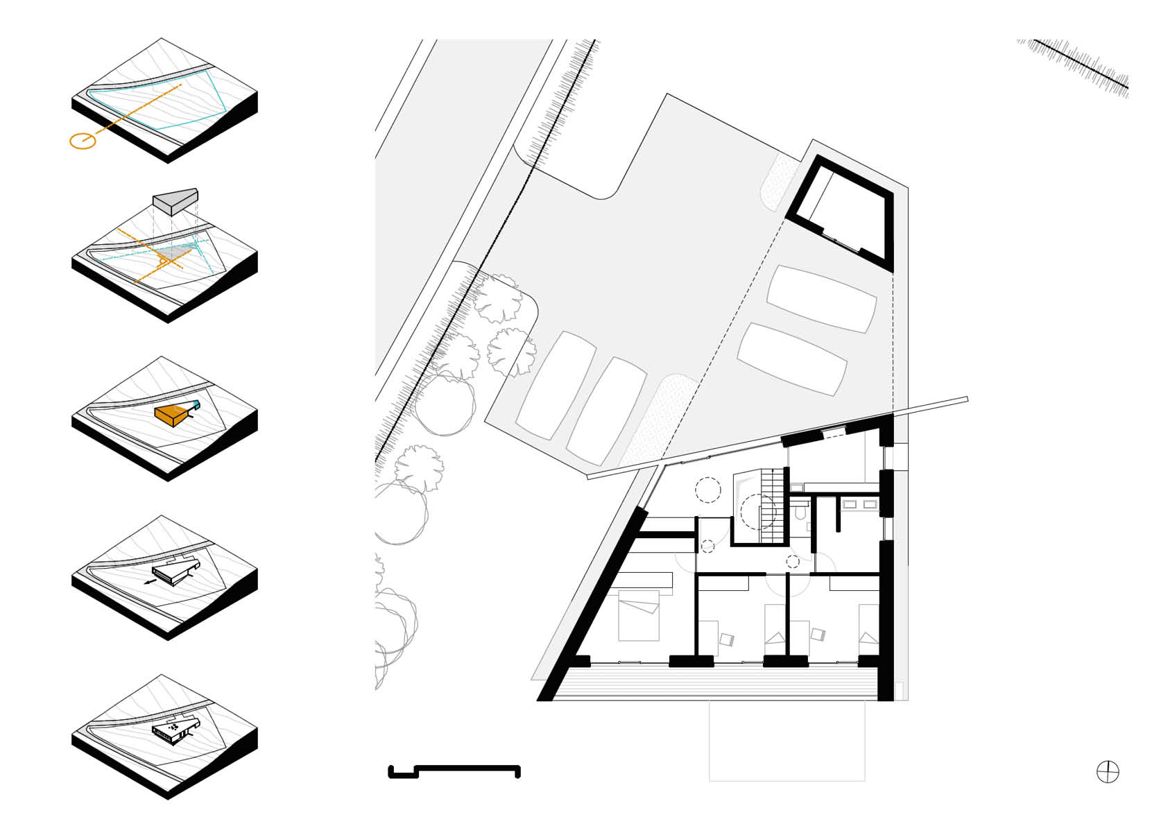
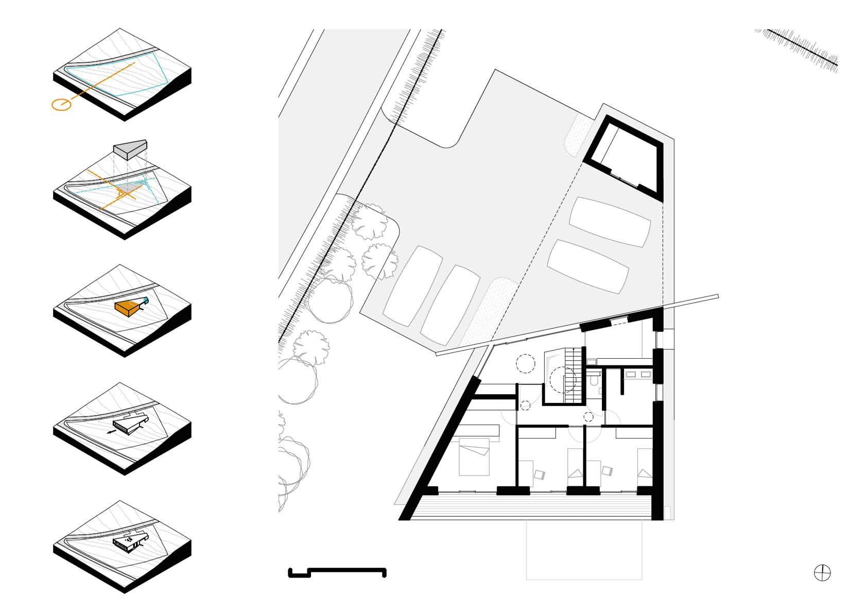
Eengezinswoning met ruwe uitstraling